Craddock Street

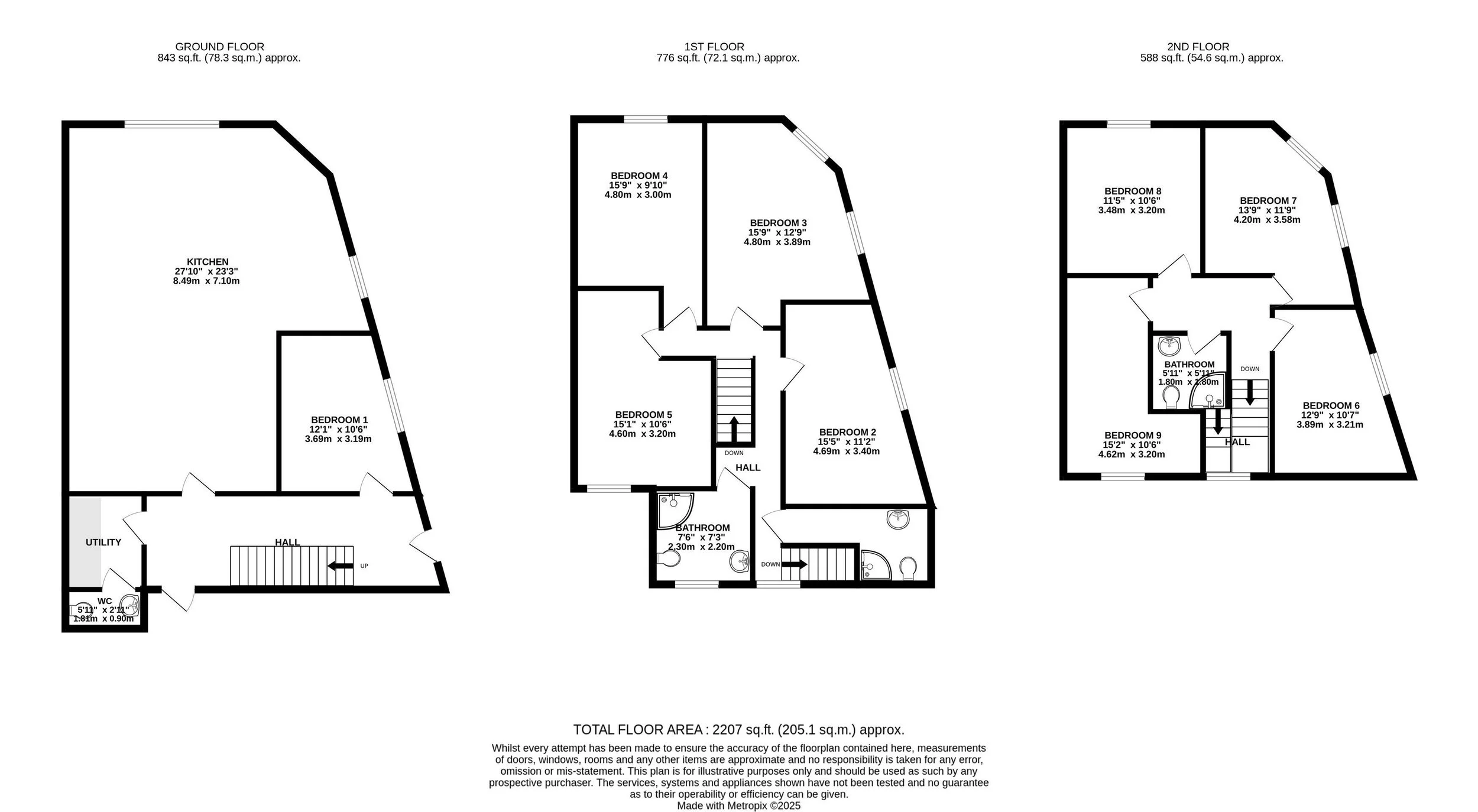
Modern 9 bedroom house near the city centre

 

the house

Welcome to Craddock Street, this professional house share boasts an open-plan kitchen and living area, with fully modern kitchen shared between the housemates and has a professional cleaner every 3 - 5 weeks

Despite being a large property, there is ample space throughout, including three full bathrooms (two on the middle floor and one on the top floor) plus an additional separate toilet on the ground floor - ensuring convenience for all housemates.


the housemates

This spacious home offers a friendly and sociable environment ideal for young professionals working in the city centre or commuting by train. Currently an all male household with tenants aged between 23 and 35. We are looking for like-minded, tidy and respectful individuals who want to enjoy a relaxed, well-maintained home while living centrally.

the rooms

Each bedroom is generously sized and fully furnished to a high standard. Every room features a unique wooden feature wall, double bed, bedside tables, chest of drawers, and either a built-in or free-standing wardrobe - offering plenty of storage while maintaining a stylish finish. These rooms provide the perfect blend of comfort and practicality.

the location

Perfectly positioned for city living, the property is just a short 10-15 minute walk to Cardiff Central Station and One Central Square. Whether you’re commuting out of the city or working locally, you couldn’t ask for a more convenient base. Enjoy everything the city centre has to offer right on your doorstep - from restaurants and bars to gyms and shops.